Termovalorizzatore di Lostock - UK
Lostock Sustainable Energy Plant (LSEP) è un impianto di energia che processerà circa 600.000 tonnellate di materiale di scarto proveniente dai rifiuti (EfW) per realizzare 69,9 MW di elettricità da immettere nella rete Locale ad uso di imprese e privati cittadini.
Il sito dell'impianto era in precedenza il sito di una centrale elettrica a carbone dismessa.
L’LSEP genererà energia sostenibile sufficiente ad alimentare 125.000 case, sostituendo l’energia proveniente dai combustibili fossili: Il processo di trattamento è regolato dall'Agenzia per l'Ambiente e dovrà rispettare rigorosi limiti di emissioni durante le fasi di messa in servizio e operative.
Questo progetto di rilevanza nazionale è attualmente in costruzione a seguito del consenso concesso nel 2012 ai sensi della Sezione 36 della legge sull'elettricità. La costruzione è iniziata nel 2020 e il sito dovrebbe essere operativo nel 2025.
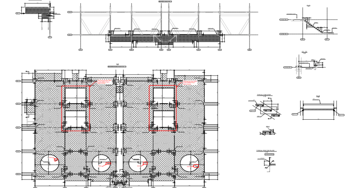
LMSteel Consulting ha fornito i servizi di ingegneria costruttiva seguendo le specifiche del progetto esecutivo e affiancando il Progettista Generale nello studio dell’ottimizzazione dei giunti in carpenteria metallica.
Il progetto è stato sviluppato realizzando i modelli geometrici 3D BIM con Tekla Structures.
Altre informazioni sul progetto al seguente link:
- Luogo
- Lostock Gralam - Manchester (UK)
- Anno
- 2024
- Stato
- Completato
- Servizi
- Ottimizzazione Dettagli Costruttivi
- Modellazione 3D BIM - Design for Manufacturing
- piani di officina, montaggio e as-built
- Cliente finale
- Lostock Sustainable Energy Plant Ltd
- General Contractor
- Confidenziale
- METALCOSTRUTTORE
- Confidenziale
- PROGETTAZIONE COSTRUTTIVA
- LMSteel Consulting sagl
- Peso [ton]
- 600
Galleria foto progetto Lostock Enery Plant
